Prachtig perceel te koop aan de rand van het dorp Darmarohori, omgeven door een zee van olijfgaarden, met uitzicht op de bergen en de glooiende heuvels!
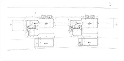
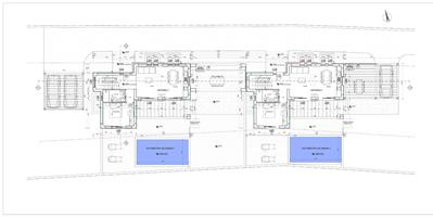
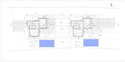
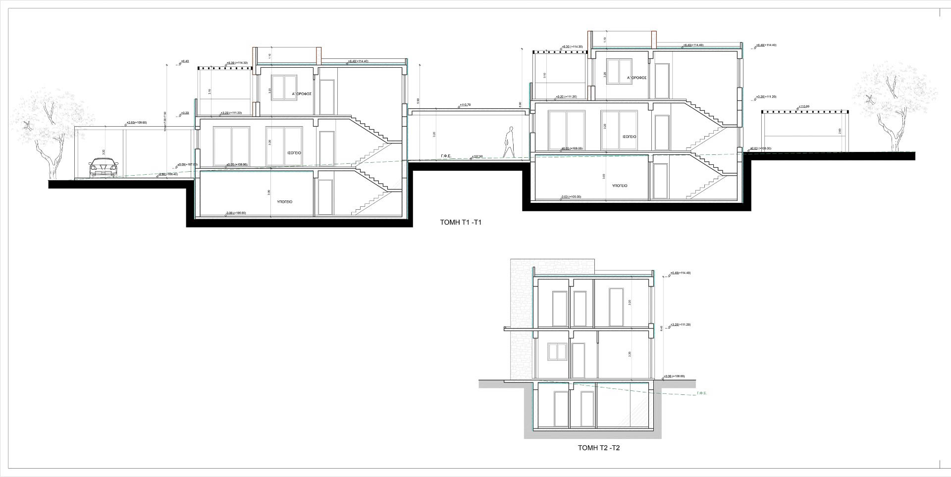
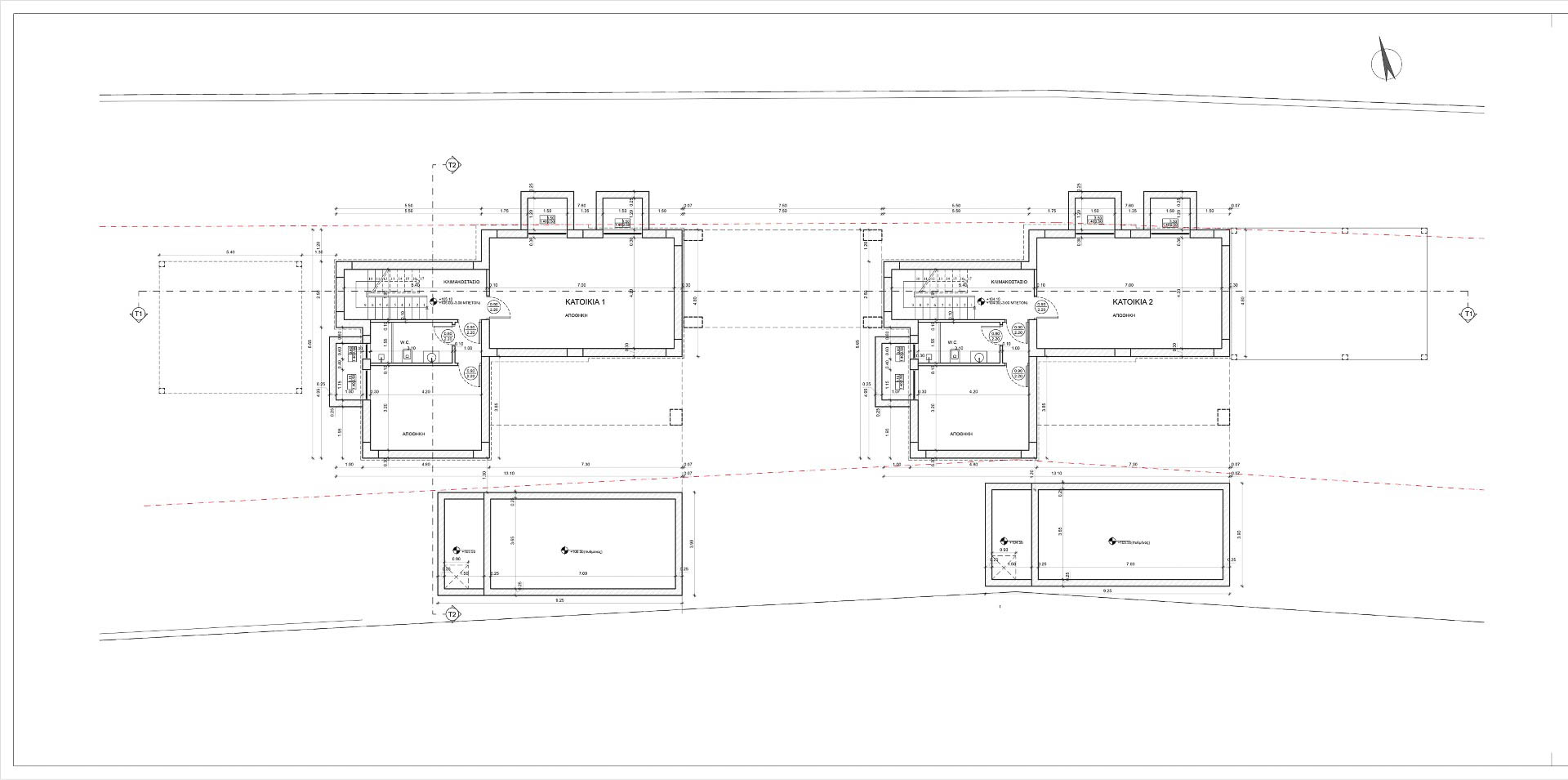
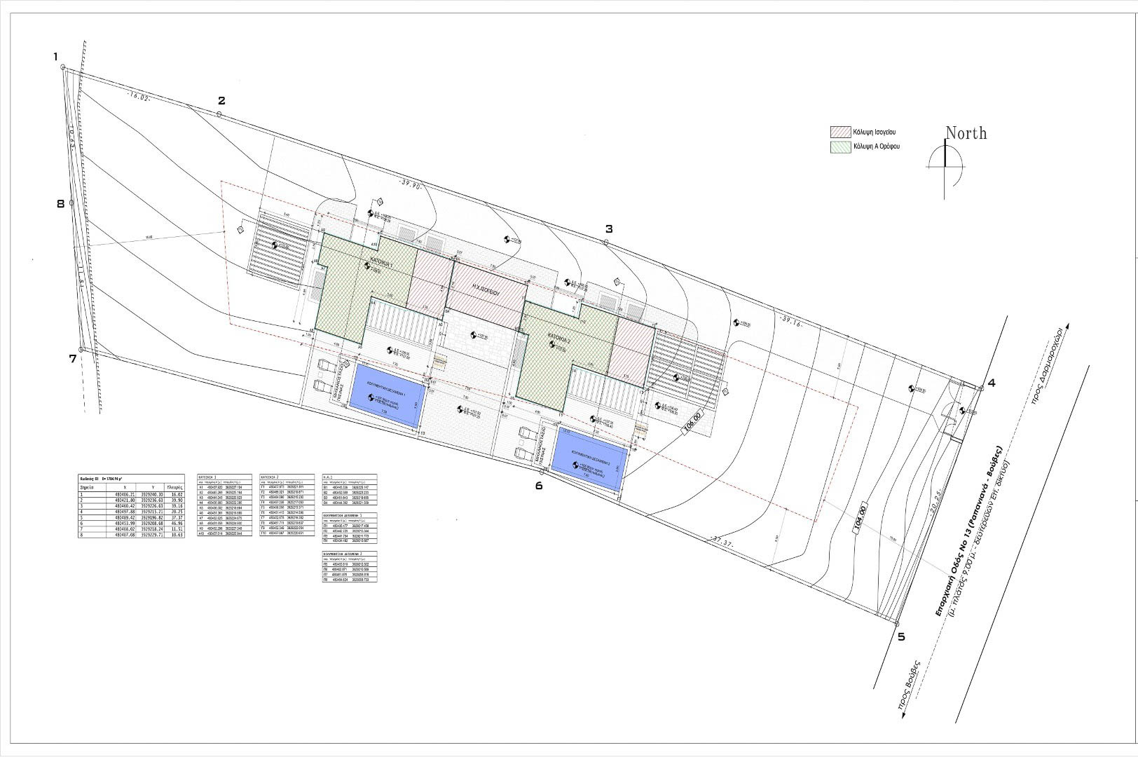
Dit perceel van 1,784,94 m² beschikt over een bouwvergunning voor twee vrijstaande villa's van elk 137,94m², elk met een privézwembad van 29,25m² en met een eigen kelder van 73,66m²!
De villa's zijn ontworpen op twee niveaus en verbonden door een overdekte ruimte. De begane grond bestaat uit een ruime open keuken/woonkamer, een badkamer met een douche van muur tot muur en een tweepersoonsslaapkamer met openslaande terrasdeuren naar de zonneterrassen rondom het zwembad. Een interne trap leidt naar de benedenverdieping, die de kelder wordt, en naar de bovenverdiepingen, die bestaan uit een gang, een gedeelde badkamer met douche van muur tot muur en twee tweepersoonsslaapkamers, waarvan één met openslaande deuren naar een ruim balkon! 384m² van het perceel zal worden gebruikt als gemeenschappelijke toegang voor de villa's en elke villa heeft het exclusieve gebruik van 700m² grond.
Vanaf de tweede verdieping van de villa's is er waarschijnlijk ook uitzicht op zee, zoals eveneens op de bergen.
Alle documenten zijn aanwezig en de toekomstige eigenaar van de grond kan direct met de bouw beginnen!
De toegang is gemakkelijk via de asfaltweg, en water en elektriciteit zijn ter plaatse aanwezig.
Het terrein is lang en smal en heeft een lichte helling naar het oosten en vervolgens weer een lichte helling naar het westen.
Dit biedt een rustig landelijk uitzicht op de heuvels, dorpen en bergen en maakt het bouwproces eenvoudig.
for sale
| Referentie Code | |
| YHOC-237 | |
| Locatie: | Darmarohori |
| Uitzicht: | Bergen |
| Prijs: | € 87,000 |
| Kavelgrootte: | 1,785 m² |
| Woonoppervlakte: | 275 m² |
| Zwembad: | Ruimte voor |
De makelaarskosten zijn niet inbegrepen in de geadverteerde prijs
INCLUSIEF
• Bestaande bouwvergunning voor 2 villa's met zwembaden
• Volledig beplant met olijfbomen
• Elektriciteit op het terrein
• Op korte afstand van voorzieningen en stranden
AFSTANDEN
• Vanaf minimarkt: 3,3km / 5 min. rijden
• Vanaf taverne: 600m / 8 min. lopen
• Vanaf strand: 3,8km / 6 min. rijden
• Vanaf dichtstbijzijnde stad: 4,7km / 6 min. rijden
• Vanaf centrum Chania: 27,5km / 30 min. rijden
• Vanaf luchthaven: 43,4km / 45 min. rijden



